人造板企業的熱能中心是以企業生產過程中所產的工業廢料、鋸木、切片、樹皮、木屑以及砂光粉等作為主要燃料經燃燒爐燃燒而產生的熱能(如熱風,熱油,蒸汽等多種熱載體)供給企業生產用熱的熱能供給設備。
熱能中心具有高效,節能,環保,自動化成度高等優點,系統在處理廢料的同時,還解決了生產所需的熱能消耗,因而熱能中心已成為人造板制造的最佳方案。

這是年產 10 萬 m3 中密度纖維板廠熱能中心工藝設計方案。
該方案由高溫煙氣全部與導熱油爐進行熱量交換產生高溫導熱油。高溫導熱油的
一部分供熱壓機使用;高溫導熱油的一部分與換熱器(蒸汽發生器)交換產生蒸汽、供熱
磨機、制膠及其它所需的蒸汽的用熱設備使用;部分高溫導熱油與換熱器交換產生熱風與
熱油爐所產生的煙氣經過二級除塵后可直接送給纖維干燥使用。

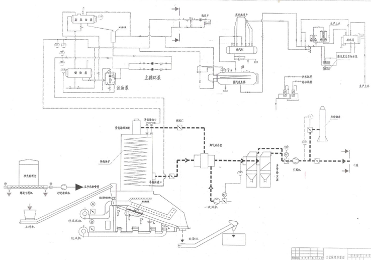
這是年產 20 萬 m3 中密度纖維板廠熱能中心工藝設計方案。
該方案由燃燒爐燃燒所產生的熱能(高溫煙氣):一路直接加熱導熱油爐盤管產生高溫導熱油,高溫導熱油供熱壓機,一路與余熱鍋爐進行熱交換產生蒸汽供熱磨機、制膠及其它所需的蒸汽設備,一路可迚行煙氣混合經過二級除塵調溫后供干燥機使用,有少量余熱排放。

熱能中心的系統構成是由:燃料供給系統, 燃燒室燃燒系統, 導熱油爐熱油供熱系統,蒸汽供熱系統, 煙氣供熱系統及控制系統等幾大部分組成。
為滿足生產能力為 20000~2000000M3/a 人造板生產線的用熱需求,目前,公司可以提供 5-70MW/h 能源工廠的設計制造,并進行指導安裝和調試實行交鑰匙工程。
提供 1.從有機載熱體(高溫熱油)、蒸汽、水到潔凈煙氣或熱風的各種組合方案
提供 2. 從燃料制備,燃燒系統生產線各用熱設備的負荷調節系統
(如熱油,熱水二次循 環系統,煙氣混合系統)的全套設計方案;
提供 3. 從技術交流,設計方案及優化,設備制造,安裝調試,交付運行到售后跟蹤全過程服務。

熱能中心規格一覽表
MDF, HDF | 年產 | 年產 | 年產 | 年產 | 年產 | 年產 |
年產量生產線 | 3 萬 m3 | 5 萬 m3 | 8 萬 m3 | 10 萬 m3 | 15 萬 m3 | 20 萬 m3 |
總 功 熱 量104kcal/h | 800 | 1200 | 1800 | 2100 | 3300 | 4200 |
A-1 熱油額供熱量104kcal/h | 80-100 | 120-160 | 200-300 | 350-450 | 500-550 | 600-700 |
A-2 蒸汽額定供熱量 t/h | 4 | 6 | 8 | 10 | 16 | 20 |
A-3 煙氣額定供熱量104kcal/h | 460 | 680 | 980 | 1000 | 1850 | 2240 |
注:非標生產線可按用戶要求特殊設計。
本公司針對木材工業,特別是人造板行業不同用戶的具體用熱需求,專門設計,制造完全適合用戶需求的用熱設備和用熱系統“熱能中心”,以達到最佳效果,全過程,全方位服務于人造板企業
我公司愿與鍋爐熱能同行一道為人造板生產企業的用熱設備“熱能中心”的能效,環保,發展作出貢獻。