光熱發電的基本原理:通常一個光熱電站分為集熱鏡場,儲熱系統,常規島三個部分。集熱鏡場的原理與太陽灶類似,無數面定日鏡將收集到的陽光反射到集熱塔上,集熱塔上有一個吸熱器,儲熱系統低溫罐中的熔鹽(通常是290℃)被泵到吸熱器中吸收能量,溫度升高(通常是565℃),流入到高溫罐之中,并儲存起來。
在需要的時候,高溫罐熔鹽可以泵出,與水換熱,產生蒸汽,推動汽輪機發電,這一部分原理與常規火電類似,被稱為常規島,這就是塔式熔鹽光熱電站的基本流程
為實現太陽能發電站的持續運行,必須把白天收集到的太陽能儲存起來,到晚上再用。白天,光熱電站主要是利用集熱器收集太陽能光熱從而加熱傳熱介質熔鹽,晚上,傳熱介質熔鹽再通過換熱設備加熱水產生高溫高壓的過熱蒸汽去推動汽輪機發電。熔鹽熱能儲能裝置是一種將太陽能收集后儲存起來的綜合系統。由換熱設備、高溫儲罐、低溫儲罐、輸送泵、閥門、管線、自動控制裝置組成。
對于帶有熔鹽儲能的光熱電站,其關鍵技術是如何把大量固態熔鹽快速安全地熔化后注入系統和如何讓大量熔化后的熔鹽維持一定的溫度不凝固。其核心系統就是化鹽系統,核心裝置就是燃氣熔鹽爐
化鹽系統工藝流程說明 :
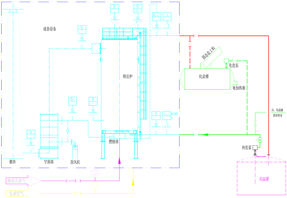
圖1 化鹽系統流程示意圖
1.
化鹽系統工藝流程如圖1所示,包括:熔鹽破碎加料系統(破碎機和熔鹽輸運機)、熔鹽槽化鹽系統、熔鹽爐加熱系統、冷卻水系統、蒸汽/煙風排放系統及排污系統。具體化鹽流程如下:
(1)初始投鹽階段:叉車運送噸袋包裝的固態熔鹽從破碎機加料口投入,破碎后的熔鹽通過熔鹽輸運機運送至化鹽槽加鹽口(安裝有加料斗)投入,初始投入一定量固態混合鹽,采用外部加熱裝置熔化至液態。
(2)持續投鹽階段:啟動熔鹽爐、熔鹽泵和攪拌器,上料系統持續從加鹽口投鹽。保持熱鹽的循環和固態鹽的投入,維持化鹽槽內熔鹽的液位和溫度(在290±5℃),直至所有固態熔鹽全部熔化進入熔鹽罐。
(3)升溫階段:熔鹽罐340℃熔鹽通過熔鹽爐進一步加熱升溫至550℃。
化鹽設備系統功能是將固態熔鹽加熱熔化并升溫至550℃,化鹽系統主要設備說明如下:
(1)熔鹽爐:載熱介質為熔鹽的熱載體加熱爐,用于加熱液態熔鹽;
(2)化鹽槽:用于存儲高溫熔鹽的槽類容器;
(3)化鹽泵:用于提供壓頭使熔鹽在爐管和管道系統中進行循環流動的泵類設備;
(4)攪拌器:用于化鹽過程中,對化鹽槽內固液熔鹽均勻混合的器件;
(5)破碎機:用于熔鹽加料時,對板結的熔鹽物料進行破碎的設備;
(6)熔鹽輸運機:用于熔鹽加料時,對熔鹽物料進行傳輸的裝置。
燃氣熔鹽爐是光熱發電項目上的核心加熱設備
燃氣熔鹽爐化鹽系統流程示意圖如下:

燃氣熔鹽爐化鹽系統供貨清單
序號 | 設備名稱 | 數量 | 規格型號 | 備注 |
1 | 熔鹽爐 | 1 | 熔鹽爐材質 | 含支撐 、煙道防爆門、平臺、扶梯、保護及防雨等結構,一次儀表,電控柜 |
S347H爐管,S304爐殼 | ||||
2 | 燃燒器 | 1 | 含燃燒器閥組、鼓風機,本體自帶控制柜等 | |
3 | 空氣預熱器 | 1 | 12Cr1MoVG管子 | 熔鹽爐配套 |
4 | 煙囪及煙氣管道 | 1 | 熔鹽爐配套 | |
5 | 化鹽槽 | 1 | 主體材料S347H,墊板S347H,支座采用S304,煙囪為碳鋼。 | 含化鹽槽加鹽口漏斗、煙囪、含保溫 |
6 | 化鹽槽風機 | 1 | 耐溫不低于300℃ | |
7 | 攪拌器 | 1 | 雙層槳葉 | 液下材質為不銹鋼304 |
8 | 熔鹽泵 | 2 | 一用一備,匹配熔鹽爐循環量,設計溫度不低于565℃, | |
9 | 皮帶運輸機 | 1 | 單臺上料能力不低于系統要求 | 含加料斗、防護罩等 |
10 | 破碎機 | 1 | 單臺上料能力不低于系統要求 | 含支撐結構和入口漏斗等 |
作者:常州市上能鍋爐有限公司芮亞平,咨詢電話:0519-82052399
上一篇:熔鹽爐
下一篇:沒有了!